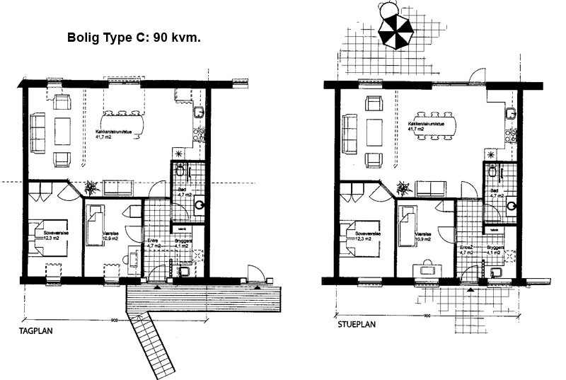
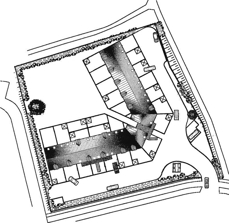
A/B Teglhøjen har eksisteret siden sommeren 2003 og består af 16 boliger.
Der findes boliger i tre forskellige størrelser: – 8 boliger i 2 plan på 120 kvm – 4 boliger i 1 plan på 90 kvm i stueplan eller på 1. sal – 4 boliger i 1 plan på 74 kvm i stueplan eller på 1. sal
Der er tilhørende mindre haver og skur til alle boligerne.